ЖК 44 Avenue

2 оголошення
Сортувати
на мапі
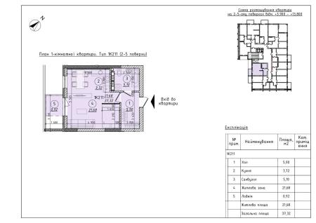
Продам 1-кімнатну квартиру в новобудові, ЖК 44 Avenue
1
37 м2
4
46 650 $
Детальніше

Продам 1-кімнатну квартиру в новобудові, ЖК 44 Avenue, 37.32 м2, без внутрішніх робіт

Центр, Мукачівська вул., 44
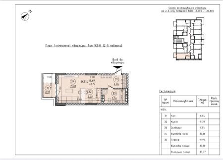
Продам 1-кімнатну квартиру в новобудові, ЖК 44 Avenue
1
34 м2
3
42 300 $
Детальніше

Продам 1-кімнатну квартиру в новобудові, ЖК 44 Avenue, 33.77 м2, без внутрішніх робіт

Центр, Мукачівська вул., 44
1