SF-3-234-365

Продам 3-кімнатну квартиру

Розташування: Ужгород, Великий Галагов, Національної Гвардії вул., 7
3 Кімнат
57 м2
2/5 поверх
Ціна
84 987 $

Інформація

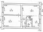
Продається затишна 3-кімнатна квартира в м. Ужгород, по вулиці Національної Гвардії, район Великий Галагов.
Поверх 2/5. Будинок цегляний.

В квартирі виконаний якісний ремонт, наявність меблів та техніки. Меблі Blest , Romanna.

Товщина стін 45см, хороша шумоїзрляція. Виконане перепланування, задокументоване. Повна заміна комунікацій, електрика, опалення, каналізація, водопровід.
Стіни - екологічна гіпсова штукатурка, фарба Caparol, іспанська плитка.
Автономне газове опалення! Водяний підігрів підлоги ( санвузол, коридор, кухня).

Підлога в одній кімнаті паркетна дошка Barlinek, в двох інших дубовий паркет ( відреставрований). Стелі - гіпсокартон.

Додатково підвальне приміщення 5 кв м, два паркомісця під вікном. Закритий двір.

Тиха локація. Чудова інфраструктура.


Це ідеальне житло для комфортного проживання вашої родини. Розташування в затишному районі поруч з усіма потрібними комунальними та соціальними сервісами. Не упустіть можливість придбати цю затишну квартиру! Звертайтесь зараз для огляду та детальної консультації.

84 987 $ вартість об'єкта
1 483 $ ціна за м2
57.30 м2
3 кімнат
2 Поверх
5 К-ть поверхів

Параметри

центральна Вода:
є Газ:
газове Опалення:
холодна вода, газ Лічильники:
цегла Матеріал стін:

Додатково

Дата оновлення інформації: 04.12.2025 14:05;